Дожимной компрессор (бустер) – специальное устройство поршневого типа, предназначенное для сжатия различных газов. Он используется в пневматической системе для обеспечения стабильной работы конечного выдуваемого оборудования.
Сжатие воздуха происходит в два этапа. На первом рабочая среда сжимается винтовым компрессором до значений в 0,6-1 Мпа, а на втором используется бустер, позволяющий поднять давление до 2,5-4 Мпа.
Особенности конструкции
|
Поршневые блоки Высокая эффективность достигается за счет увеличения давления в существующей сети, так как потребление энергии от комбинации винтовой компрессор / бустер остается значительно ниже, чем в сравнении с 2-ступенчатым или 3-ступенчатым компрессорами. |
|
Шатуны с запасом хода
Шатун снабжен надежным игольчатым подшипником на стороне коленвала. |
|
Цельный коленвал
Выкован из единой заготовки, с динамической балансировкой, с большим запасом прочности, с роликовыми подшипниками с двух сторон |
|
Усиленные клапаны Обладает увеличенным сроком службы за счет комбинированных язычковых клапанов всасывания/нагнетания. |
|
Дополнительный резервуар для масла С целью увеличения периода между техническим обслуживанием компрессор снабжен дополнительным резервуаром для масла. Рекомендуется использовать синтетическое масло с интервалом замены 2000 рабочих часов. |
|
Кожух с оптимизированным потоком воздуха Охлаждение блоков цилиндра за счет направленного потока воздуха. |
Система управления
В качестве системы управления в компрессорных установках серии ВА используется контроллер Airmaster P1.
- Индикация выходного давления. Предоставляет возможность устанавливать пределы по давлению в допустимом диапазоне.
- Счетчик времени наработки.
- Контроль двигателя при перегрузке. Автоматическое отключение в случае аварии.
Технические параметры и преимущества изделий
Дожимные компрессоры «Ремеза» оснащаются предохранительными клапанами на входе и выходе из системы, а также электромагнитным – на радиаторе. Очень важно контролировать входное давление. Специальный клапан отключает бустер в случае снижения давления потока ниже 0,6 МПа.
Они обладают системой электронного управления и контроля, предусматривают автоблокировку при самопроизвольном включении компрессора, полное управление его автоматикой. Бустеры контролируют параметры сети, имеют защитное термореле, следящее за перегрузками системы.
В зависимости от приложений, бустеры могут работать с разными газами:
- природным, метаном, биологическим;
- водородом, обычным воздухом, азотом;
- ацетиленом;
- углеводородом, оксидом азота;
- различными газовыми смесями.
Дожимной компрессор высокого давления активно применяется на станциях СТО, в сервисных автомастерских, на предприятиях пищевой промышленности, при организации системы водоснабжения и т.п.
У них есть два рабочих режима: прерывистый и непрерывный. Первый отличается более экономным расходом, тогда как непрерывный организует постоянный доступ к рабочей среде.
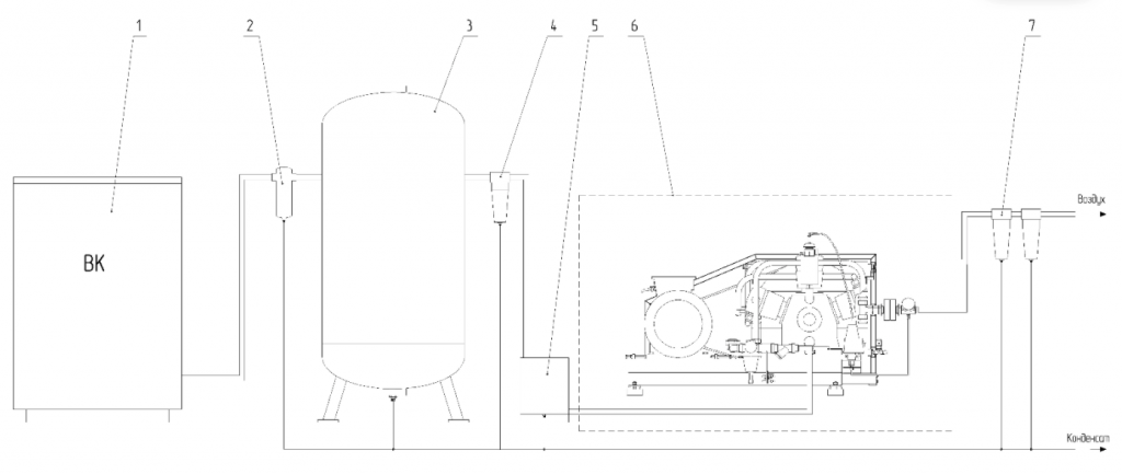
Схема комплектной компрессорной станции
2.Влагомаслоотделитель (сепаратор)
3.Воздухосборник
5.Осушитель холодильного типа
6.Бустер
7.Фильтры дополнительной очистки воздуха 0,01 мкм
Сфера применения
- Пищевая промышленность
- Производство автомобилей
- Выдув ПЭТ-тары
Особенности работы дожимного компрессора
Данные изделия должны иметь эффективное охлаждение из-за большого количества тепла, выделяемого при сжатии воздуха. Компрессор нагревается, если не предусмотрен охладитель. Для эффективной и безопасной работы необходимо устанавливать бустер не менее чем за 1 м от стены, чтобы обеспечить приток воздуха к системе. Требуется организация хорошей вентиляции помещения.
Дожимные поршневые компрессоры устанавливаются на плоской и ровной площадке. Дополнительная подготовка (специальный фундамент) не нужен.
Управление работой системы происходит в автоматическом режиме. Все параметры, включая давление на входе, температурный режим, контролируются специальными датчиками. При повреждении бустер автоматически отключается.
Преимущества изделий:
- небольшие размеры, мобильность;
- легкость управления;
- низкий уровень шума;
- наличие автоматической защиты системы от перегрева, механических повреждений, перепадов напряжения и температуры;
- высокая производительность.
В каталоге компании «Ремеза» представлен широкий ассортимент моделей бустеров, отличающихся стабильностью работы и высокими техническими характеристиками. У нас вы можете купить дожимной компрессор бытового и промышленного исполнения.
Для этого нужно оставить заявку на сайте или позвонить по указанному телефону. Наши специалисты проконсультируют вас по всем вопросам и помогут определиться с выбором подходящей модели бустера. Все поставляемые изделия комплектуются сертификатами и отвечают требованиям международных стандартов качества.